[PR]上記の広告は3ヶ月以上新規記事投稿のないブログに表示されています。新しい記事を書く事で広告が消えます。
表札を選ぶのって、けっこう悩みませんか? 以前は、木や石に掘り込んでいるのが多かったように感じますが、今は木や石に加えガラスやアイアン、陶器、ステンレス等の素材のものがあり、デザインも多様化していますね。 オリジナルでデザインした表札を作られる方も多いのではないのでしょうか。 我が家は表札に特にコダワリは無かったのですが、それでも選ぶときに悩みました(ちょっとだけ)。 近所のホームセンターを2件ほど廻り、最終的に選んだのがこちらです。 左側の表札の色、書体で、文字の配置は右側の表札のようにしました。 木製の玄関ドアなので、素材に木を使っているものが良いかなと思って選んだものです。 価格も1万円ちょっと位だったので、安価な部類に入ると思います。 この表札は気に入ってるのですが、サイズが縦9cm×横14.5cmと小さいので、もうちょっと大きなものが良かったかなと思っています。よくよく調べてみたら、どうやらこの表札はマンション向けのものだったようで、戸建向けと比較するとコンパクトなサイズになっているみたいです。 この表札に決めるまでは、ホームセンターの見本やパンフレットを見たりしたのですが、なかなか決めきれずに「実際にどんな表札をつけているのか見に行こう!」と新興住宅地に出かけたりもしました。 実際に利用されている表札を見ると、色々なものがあるもんだなぁ~というのも驚いたのですが、もっと驚いたのが、表札をつけていない家がかなりあるということ。これは防犯等のためなのでしょうか。それとも、ただのメンドクサガリ屋さんだからなのかな。 防犯対策という訳じゃないですが、表札に関係した犯罪でこんなことがあったようです。 “珍名表札泥棒”は、埼玉県蕨市中央の無職、丹羽康裕容疑者。調べによると、再逮捕の容疑は1月28日午前2時ごろ、東京都荒川区の無職男性(75)宅の敷地内に侵入し、玄関の表札1枚(1万円相当)を盗んだ疑い。 同日に家宅捜索すると署員が「なんだこりゃ!?」。1人暮らしするアパートから、289枚もの表札が見つかった。所持していた2枚と合わせて291枚。段ボール箱に入っていたほか「自身が寝るところを囲むようにして、敷布団の上に表札を並べていた。囲まれて眠り、時々表札を見て確認しては満足していた」(同署)。 同容疑者によると、泥棒稼業の開始は5年前。東京、埼玉、千葉の公衆電話などの電話帳を利用し、珍名を見つけては地図に記しを付けてウロウロ。気に入ったら盗んだという。「珍しい名前や自分の好きな漢字が入ってあれば盗んだ。楷書で書かれたきれいな表札が好きだった」と供述。崩し字や草書の表札は盗んでいなかった。 珍名表札ドロ、布団の上までズラリ291枚(サンスポ) う~ん、なんと言ったら良いのでしょう・・・ 病んでますね・・・ 最後まで、ご覧頂きありがとうございます。 更新の励みになります できたら、こちらもポチッとお願いします
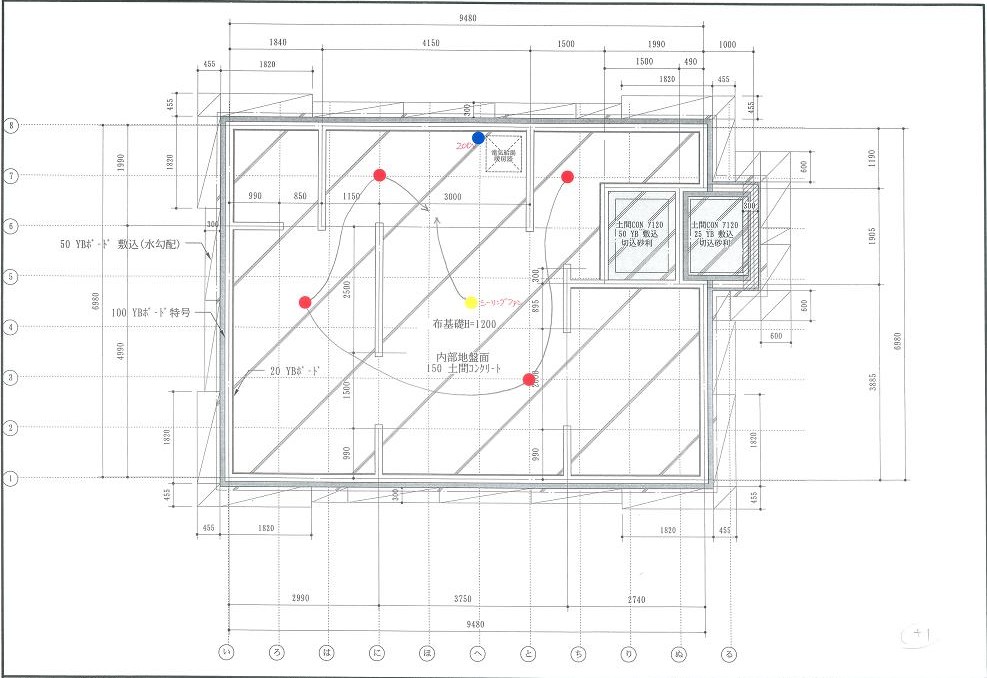
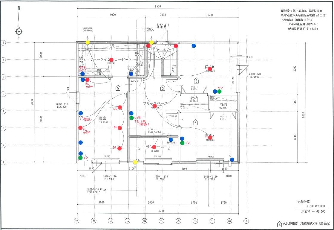
電気配線について、何か工夫した点は?というリクエスト???がありましたので、本日はウチの配線図を公開いたします。 では、まずは1F配線図から 拡大してみると、赤い丸や青い丸が記入してあります。それぞれの色付き丸の意味は以下のように記されています。 赤丸-照明 青丸-コンセント 黄丸-各機器類コントローラおよび換気扇 緑丸-TVアンテナ配線他 照明(赤丸)から出ている黒い線の先端が、照明のスイッチになります。 1階の配線関係で工夫した点といえば、以前ちょっと記したような気もするのですが、ウチは特に1階は壁が少なく家具等を置くスペースが非常に限られています。それで、ちょっと悩んだのがTVを置く場所 図面を見ながらあれこれと考えたのですが、ウチの間取りではどう考えても掃き出し窓の左右のどちらかに置くしかありません。でも、でもどちらに置いた方が良いのか実際に家具等を置いてみないと分からなかったので、どちらにでもTVを設置できるように掃き出し窓の左右両方にTVアンテナとコンセントを付けてもらいました。 入居する前はダイニング側にTVを置く予定でしたが、今は洋室側にTVを設置しています。 コンセントを追加してもらって重宝している場所はキッチン周りです。図面ではIHと食洗器用の電源も青丸で記入されているので分かりづらいですが、シンクの左側の壁にコンセントを追加、作業台の所にもコンセントを追加してもらっています。 こんな感じです。 また、リビング掃き出し窓とダイニングの窓の間に、エアコンを付けられるように200Vのコンセントを付けてもらいました。ただ、このエアコンに関しては今のところ付けない可能性の方が大ですが では、引き続き2階の配線図を 2階で工夫した点は、インターネット用のモデム、無線ルーターをウォークインクローゼットの中に設置するようにしているところです。皆さんもよく邪魔にならない(見えない)場所に設置していますよね。 寝室の照明スイッチは、ベッドから出ることなく照明をON/OFFできるようにしたかったので、場所や高さなどを細かく指定しました。そのため寝室のブラケットとダウンライトは三路スイッチにしてもらい、部屋の入口とベッドの枕元で操作出来るようにしました。ただし、ダウンライトの調光は枕元のみです。 ※三路スイッチとは、よく階段は上階と下階の2箇所でON/OFF出来るようになっていますね。あのように2箇所でON/OFFする場合に使われているのが三路スイッチです。ちなみに3箇所以上でON/OFFするときは四路スイッチを使用します。 2階のコンセントでカミさんが重宝しているのは、掃除機もかけやすい様にとサンルームに設置したコンセントがアイロン掛けるのに丁度良いそうです。 コンセント、スイッチの設置箇所を考えるときに重要なのは、やはり実際に生活している場面をイメージして、家具や電化製品をどこに置くのか?コンセント位置の高さは?をよく考えることだと思います。また、現場に行ってみるのもイメージを膨らますのに良いですよね ホーム創建の場合、コンセントを追加するのに1ケ所3,000円くらい、TVの配線が1ケ所5,000円くらいの費用がかかりますが(確か)、後からは簡単に追加できないものなので、若干多めの方が私は良いと思います。 ここまで書いてきて、何かあまり役に立たない情報のような気もしてきましたが、せっかく書いたのでUPしようかと思います。 では最後におまけの床下の配線図を 最後まで、ご覧頂きありがとうございます。 更新の励みになります できたら、こちらもポチッとお願いします
ひさびさの更新です。本日は食品庫をご紹介します。 たくさんのブログを見させてもらっていると、たまに「パントリー」という言葉が出てくる時がありますが、「パントリー」ってなんだろう???と思っていました。それで、調べてみると「食品庫」のことだったのですね 「パントリー」を簡単に言うと、缶詰や調味料等の細かい食品を見やすく沢山しまえる収納ということのようです。詳しくはこちらのページを参考に「住宅設備ナビ」。 それでウチの食品庫ですが、「パントリー」とはちょっと違った性格のものです。というのも奥行きが浅い棚がある訳ではなく、中の物が特別見やすくなっている訳でもありません。その代わりといっては何ですが別の機能がついています。 上図を見ながら説明すると、食品庫のドアを除く部分の上下左右部分は断熱材が施工されており、ドア部分は断熱ドア(分厚いので・・・たぶん)になっています。つまり、屋内からも屋外からも隔離された空間になっています。そして食品庫の中には通気口と換気扇が付けられています。 建築中の写真です。上の方に通気口、下方に換気扇の穴が開いています。 下方に取り付けられた換気扇には温度センサーが付けられていて、設定温度を超えると換気扇が作動し通気口からは外気が入るようになっています。ということで冬場は簡易冷蔵庫のような働きをしてくれます。センサーを温度設定しておけば、食品庫内が設定温度を超えると換気扇が回り、通気口から外の冷たい空気が入って来て庫内の温度が低く保たれます。寒い地域ならではの簡易冷蔵庫ですね。 ちなみに食品庫のサイズは幅・奥行きともに約70cm、高さは床から天井までです。 通気口。必要無い時は閉じてます。 換気扇と温度センサー(右側の小さいのが温度センサーです) ウチもそうですが、ホーム創建で家を建てられた方は、けっこうこの食品庫を付けられた方が多いようです。 十勝に住んでいると、嬉しいことに親戚や友人、知り合いから野菜を頂く機会が多いんです特に秋の収穫時期になると、じゃが芋やカボチャをわんさか貰うので、この食品庫は重宝します 現状の使い方は、通気口だけ開けておいて換気扇のスイッチは切っています。それでも外の冷たい空気は入って来ているので、食品庫内は冷えています。 ただし、あくまで外気を取り込んで結果的に冷えるという仕組みなので、外気温以下に冷えることはありません。なので夏場はただの収納庫になります 最後まで、ご覧頂きありがとうございます。 更新の励みになります できたら、こちらもポチッとお願いします